Apartment, 71 m2, For Sale, Šibenik - Meterize


Apartment, 71 m2, For Sale, Šibenik - Meterize

Basic information

  • Custom IDiro-4125
  • Price202 000 € (1 521 969 kn)
  • LocationŠibenik, Meterize (22000)
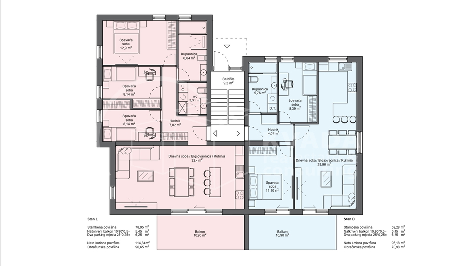
  • Area71,00 m2
  • Apartment type3 rooms
  • Energy ClassA+
  • Room Count3
  • Bedroom Count2
  • Bathroom Count1
  • Floor1
  • Floor LevelsStorey
  • Building Floors2
  • Building ClassResidential
  • Year Built2026
  • Distance from the Town Center2 000 m
  • Parking Spaces2

Heating

  • Floor Heating
  • Air Conditioning

Utilities

  • Electricity
  • Water
  • Sewer

Building Condition

  • New

In Vicinity Of

  • Grocery Store
  • Center of town
  • Public Beach
  • Restaurant
  • Church
  • Kindergarden

Permits and documentation

  • Building Permit
  • Use Permit
  • (HR) Etažni elaborat

Property location

Contact agency