Apartment, 40 m2, For Sale, Stenjevec - Špansko


Apartment, 40 m2, For Sale, Stenjevec - Špansko

Basic information

  • Custom IDiro-4418
  • Price179 768 € (1 354 462 kn)
  • LocationŠpansko, Stenjevec (10000)
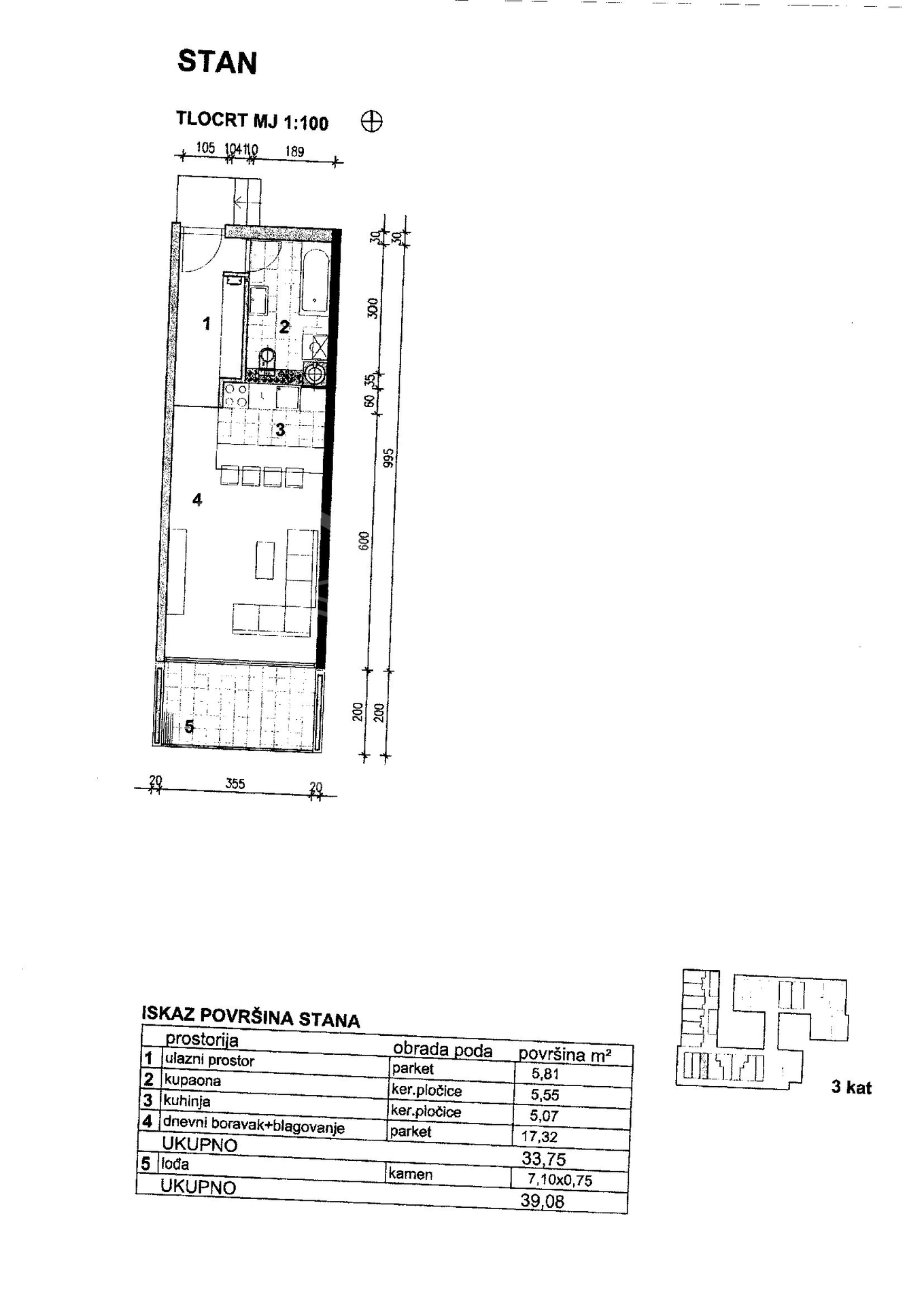
  • Area40,00 m2
  • Apartment type1 room
  • Energy ClassA
  • Room Count1
  • Bedroom Count1
  • Bathroom Count1
  • Floor3
  • Floor LevelsStorey
  • Building Floors8
  • Building ClassResidential
  • Year Built2008
  • Parking Spaces1

Various Features

  • Elevator
  • Loggia
  • Surveillance System
  • Aluminium joinery

Heating

  • Central Heating
  • Air Conditioning

Utilities

  • Electricity
  • Water
  • Sewer
  • Phone Line
  • DSL/Internet

Building Orientation

  • South

Parking

  • Garage

Permits and documentation

  • Building Permit
  • Use Permit

Property location

Contact agency