BEZ PROVIZIJE***Prodaje se 3-sobni stan na Vidcima površine 60 m2 / Novogradnja


BEZ PROVIZIJE***Prodaje se 3-sobni stan na Vidcima površine 60 m2 / Novogradnja

Osnovne informacije

  • Šifra objektairo-4358
  • Prodajna cijena205 819 € (1 550 743 kn)
  • LokacijaŠibenik, Vidici (22000)
  • Kvadratura60,54 m2
  • Tip stana3S
  • Energetski razredA+
  • Broj soba3
  • Broj spavaćih soba2
  • Broj kupaonica1
  • Kat opisnoPrizemlje
  • Broj etažaJednoetažni
  • Ukupno katova2
  • Vrsta zgradeStambena
  • Godina izgradnje2025
  • Br. parkirnih mjesta1

Stan 3S za prodaju, Šibenik, 205 819 €

Molimo zvati na mob: 00385 91 542 4774
ZA OVU NEKRETNINU KUPAC NE PLAĆA AGENCIJSKU PROVIZIJU !
Prodaje se moderni 3- sobni stan u Šibeniku površine 60 m2. Stan se nalazi na Vidicima.

Prednost je mirna lokacija.
Šibenik je šarmantni grad na jadranskoj obali koji očarava svojom bogatom povješću
i prekrasnom arhitekturom.
Šibenik se ponosi s čak dva UNESCO- va spomenika : katedralom sv . Jakova i tvrđavom sv. Nikole

Grad se također ističe prekrasnim otocima i blizinom dva Nacionalna parka ( Krka i Kornati )

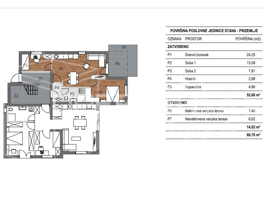
Stan obračunske površine 60,54m2 (neto korisne površine 66,70 m2).

Stan se nalazi u prizemlju stambene zgrade s ukupno 5 stanova.

U blizini su dućani, restorani i javni prijevoz.

Stan se sastoji od :


Openspace dnevnog boravak
Blagavaonice
Kuhinje
2 spavaće sobe
Kupaonice
Spremišta
Natkrivene terase površine 7,4 m2
Nenatkrivene terase površine 6,62 m2

1 parkirno mjesto

Radi se o novogradnji, useljivo sredinom 2026.

Tehničke karakteristike:
Podno grijanje u svim prostorijama
Klima uređaji
Visokokvalitetni materijali i oprema


Priključci :
el.mreža / struja
gradski vodovod

Uredan vlasnički list
Posjeduje sve potrebne dokumente

Za više informacija :
mob : 00385 91 542-4774
mail : sibenik@kvadar-nekretnine.hr

Grijanje

  • Podno grijanje
  • Klima

Instalacije

  • Struja
  • Voda
  • Kanalizacija

Stanje zgrade

  • Novogradnja

U blizini

  • Crkva
  • Trgovina
  • Javni prijevoz
  • Banka
  • Benzinska postaja
  • Ljekarna
  • Park

Prikaz nekretnine na karti

Kontaktiraj agenciju