BEZ PROVIZIJE / RESNIK / NOVOGRADNJA / STAN 33.92m2 /


BEZ PROVIZIJE / RESNIK / NOVOGRADNJA / STAN 33.92m2 /

Osnovne informacije

  • Šifra objektairo-4406
  • Prodajna cijena135 680 € (1 022 281 kn)
  • LokacijaResnik, Peščenica - Žitnjak (10000)
  • Kvadratura33,92 m2
  • Tip stana2S
  • Energetski razredA+
  • Broj soba2
  • Broj spavaćih soba1
  • Broj kupaonica1
  • Kat2
  • Broj etažaJednoetažni
  • Ukupno katova2
  • Vrsta zgradeStambena
  • Godina izgradnje2026
  • Br. parkirnih mjesta1

Stan 2S za prodaju, Peščenica - Žitnjak, 135 680 €

Za sve informacije nazovite na: 099 804 8440

Za ovu nekretninu nema agencijske provizije!



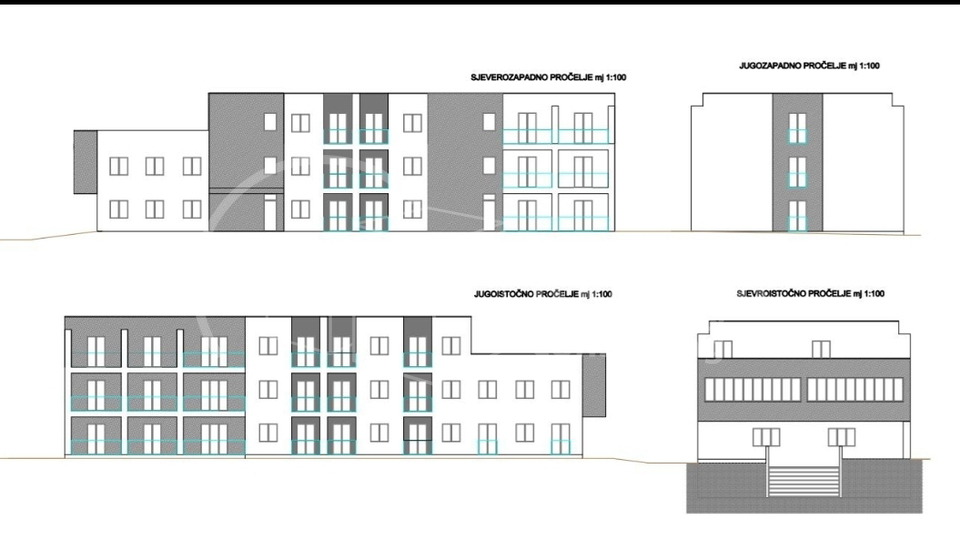
U ponudi dvosoban stan u sklopu nove stambene zgrade sa ukupno 19 stambenih jedinica u Resniku.

Mirna stambena okolina, u blizini se nalaze svi potrebni sadržaji za ugodan život. Dobra prometna povezanost.

Planirani završetak radova 01/2027.

Visokokvalitetna gradnja, armirano-betonske konstrukcije, na ukupno 4 etaže sa garažnim i vanjskim parkirnim mjestima.

Stan se sastoji od ulaza, kuhinje, blagovaonice sa dnevnim boravkom, jedne spavaće sobe, kupaonice i terase.

Stanovi u prizemlju imaju pripadajući vrt.

Uz kupnju stana obavezna je kupnja garažnog mjesta po cijeni od: 20.000 €



Cijena stana: 135680 €



Za sve informacije nazovite na: 099 804 8440

mail: info@kvadar-nekretnine.hr

www.kvadar-nekretnine.hr

Grijanje

  • Plin

Instalacije

  • Struja
  • Voda
  • Kanalizacija
  • Plin

Stanje zgrade

  • Novogradnja

Prikaz nekretnine na karti

Kontaktiraj agenciju