BEZ PROVIZIJE***SESVETE / NOVOGRADNJA / 4-SOBNI STAN SA GARAŽOM / 78 m2


BEZ PROVIZIJE***SESVETE / NOVOGRADNJA / 4-SOBNI STAN SA GARAŽOM / 78 m2

Osnovne informacije

  • Šifra objektairo-4430
  • Prodajna cijena278 000 € (2 094 591 kn)
  • LokacijaSesvete (10360)
  • Kvadratura78,70 m2
  • Tip stana4S
  • Energetski razredA+
  • Broj soba4
  • Broj spavaćih soba3
  • Broj kupaonica1
  • Kat1
  • Broj etažaJednoetažni
  • Ukupno katova2
  • Vrsta zgradeStambena
  • Br. parkirnih mjesta2

Stan 4S za prodaju, Sesvete, 278 000 €

Molim zvati na broj: +385 98 725978

ZA OVU NEKRETNINU KUPAC NE PLAĆA AGENCIJSKU PROVIZIJU!

Stanu pripada garaža i vanjsko parkirno mjesto (U CIJENI STANA)!!!

Prodaje se funkcionalan i prostran 4-sobni stan u mirnom dijelu Sesveta, idealan za obiteljski život. Lokacija nekretnine nalazi se na nekoliko minuta vožnje od centra Sesveta što pruža jednostavnu i brzu povezanost glavnim prometnicama i javnim prijevozom.

Stan je smješten na 1.katu zgrade od ukupno 2 kata. Parkirna / garažna mjesta nalaze se na etaži -1.

Gradnja zgrade: armirano-betonska konstrukcija

Kvaliteta gradnje i oprema:

Podovi: troslojni hrastov parket ( 1. klasa), pogodan za podno grijanje

Grijanje: dizalica topline+podno grijanje

PVC stolarija: termoizolacijsko staklo, električne rolete i komarnici

Protuprovalna ulazna vrata

Zgrada je opremljena liftom, osiguran invalidski pristup

Energetski razred: A+



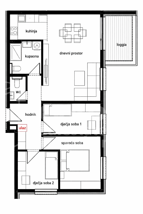
Na prikazanom tlocrtu vidljiv je raspored prostorija stana koji se sastoji od:

- hodnika / predprostora

- dnevnog boravka sa blagovaonicom

- kuhinje

- kupaonica + wc

- 3 spavaće sobe

- lođa

- spremište



Dajemo kompletnu stručnu i pravnu uslugu!

ZA VIŠE INFORMACIJA I DOGOVOR OKO PREZENTACIJE MOLIMO ZVATI NA:


mob: +385 98 725978
mail: info@kvadar-nekretnine.hr
www.kvadar-nekretnine.hr

Razna svojstva

  • Lođa

Grijanje

  • Podno grijanje
  • Plin
  • Struja

Instalacije

  • Struja
  • Voda
  • Kanalizacija

Stanje zgrade

  • Novogradnja

Dokumentacija

  • Građevinska dozvola

Prikaz nekretnine na karti

Kontaktiraj agenciju