BEZ PROVIZIJE ZA KUPCA!! MALINSKA - Luksuzna novogradnja s bazenom i pogledom na more 139 m2 (Dvojna kuća)


BEZ PROVIZIJE ZA KUPCA!! MALINSKA - Luksuzna novogradnja s bazenom i pogledom na more 139 m2 (Dvojna kuća)

Osnovne informacije

  • Šifra objektairo-4441
  • Prodajna cijena640 000 € (4 822 080 kn)
  • LokacijaMalinska, Sveti Anton (51511)
  • Kvadratura139,00 m2
  • Okućnica821,00 m2
  • Vrsta kućeDvojni objekt
  • Energetski razredA+
  • Broj soba4
  • Broj spavaćih soba3
  • Broj kupaonica3
  • Vrsta zgradeKuća
  • Godina izgradnje2025
  • Br. parkirnih mjesta2

Kuća Dvojni objekt za prodaju, Malinska, 640 000 €

MALINSKA - Luksuzna novogradnja s bazenom i pogledom na more 139 m2 (Dvojna kuća)

ZA OVU NEKRETNINU KUPAC NE PLAĆA AGENCIJSKU PROVIZIJU!


Prodaje se moderna mediteranska dvojna kuća u Malinskoj na otoku Krku.

Ova luksuzna nekretnina u nudi vrhunsku kvalitetu gradnje, privatni bazen i moderan dizajn na mirnoj lokaciji u blizini svih sadržaja.

Nekretnina se nalazi u mirnoj mikrolokaciji okruženoj novim građevinama.

Blizina mora, centra grada, trgovina i restorana čini je savršenom za život ili investiciju.


Kuća je osmišljena kao spoj modernog dizajna i mediteranskog ugođaja, s fokusom na funkcionalnost i udobnost.



Svaka kuća se sastoji od:

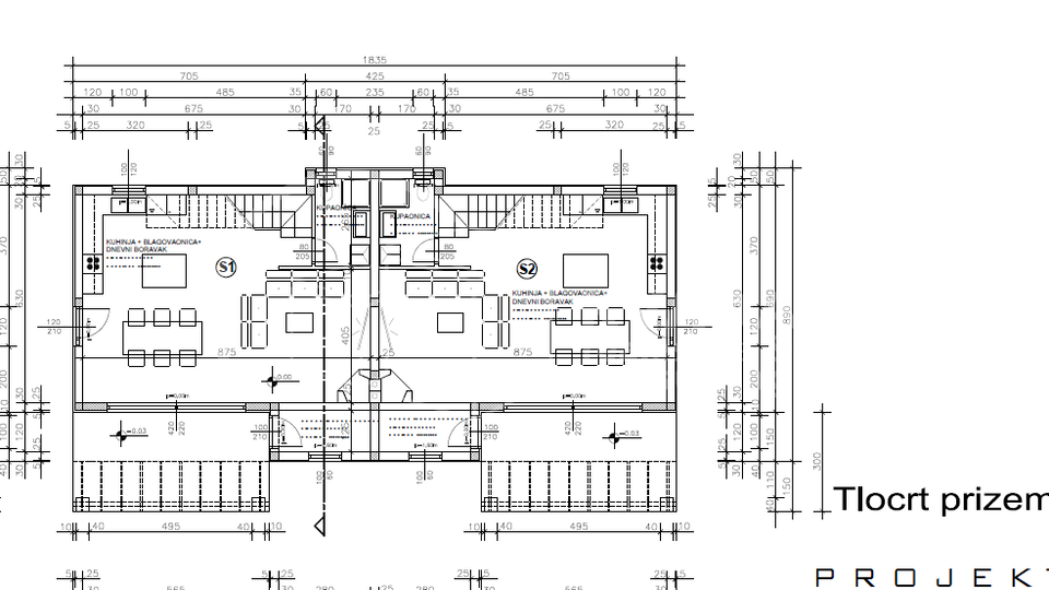
Prizemlja:

- prostrani "open-space" dnevni boravak s kuhinjom i blagovaonicom.

- kupaonica i praktično spremište.

- izlaz na natkrivenu terasu i sunčalište s bazenom površine 21 m2.

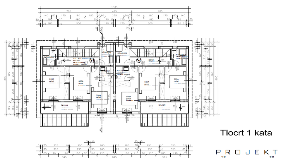
Kata:

- 3 prostrane spavaće sobe.

- 3 moderne kupaonice (svaka soba ima vlastitu kupaonicu, što je idealno za turistički najam).

STANDARD GRADNJE:

- visoka energetska učinkovitost i najkvalitetniji materijali.

- klimatizacija svih prostorija i vrhunska podna keramika.

- 2 osigurana parkirna mjesta.

SUSTAV GRIJANJA I KLIMATIZACIJE:

- klima uređaj
- dizalica topline


Priključci:

- Gradski vodovod
- - gradska kanalizacija
- - struja



DOKUMENTACIJA:

-vlasnički list

- građevinska dozvola



TERETA NEMA!



Za Više informacija:

tel. 095 7170345

info@kvadar-nekretnine.hr

www.kvadar-nekretnine.hr

MALINSKA - Luksuzna novogradnja s bazenom i pogledom na more 139 m2 (Dvojna kuća)


Prodaje se moderna mediteranska dvojna kuća u Malinskoj na otoku Krku.

Ova luksuzna nekretnina u nudi vrhunsku kvalitetu gradnje, privatni bazen i moderan dizajn na mirnoj lokaciji u blizini svih sadržaja.

Nekretnina se nalazi u mirnoj mikrolokaciji okruženoj novim građevinama.

Blizina mora, centra grada, trgovina i restorana čini je savršenom za život ili investiciju.


Kuća je osmišljena kao spoj modernog dizajna i mediteranskog ugođaja, s fokusom na funkcionalnost i udobnost.



Svaka kuća se sastoji od:

Prizemlja:

- prostrani "open-space" dnevni boravak s kuhinjom i blagovaonicom.

- kupaonica i praktično spremište.

- izlaz na natkrivenu terasu i sunčalište s bazenom površine 21 m2.

Kata:

- 3 prostrane spavaće sobe.

- 3 moderne kupaonice (svaka soba ima vlastitu kupaonicu, što je idealno za turistički najam).

STANDARD GRADNJE:

- visoka energetska učinkovitost i najkvalitetniji materijali.

- klimatizacija svih prostorija i vrhunska podna keramika.

- 2 osigurana parkirna mjesta.

SUSTAV GRIJANJA I KLIMATIZACIJE:

- klima uređaj
- dizalica topline


Priključci:

- Gradski vodovod
- - gradska kanalizacija
- - struja



DOKUMENTACIJA:

-vlasnički list

- građevinska dozvola



TERETA NEMA!



Za Više informacija:

tel. 095 7170345

info@kvadar-nekretnine.hr

www.kvadar-nekretnine.hr





MALINSKA - Luxury New Build with Pool and Sea View, 139 m2 (Semi-detached house)

For sale is a modern Mediterranean semi-detached house in Malinska on the island of Krk. This luxury property offers top-quality construction, a private pool, and a modern design in a quiet location close to all amenities.
The property is situated in a peaceful micro-location surrounded by new buildings. Proximity to the sea, city center, shops, and restaurants makes it perfect for living or investment.

The house is designed as a blend of modern design and Mediterranean atmosphere, with a focus on functionality and comfort.

Each house consists of:
Ground Floor:

- Spacious open-space living room with kitchen and dining area.
- Bathroom and a practical storage room.
- Access to a covered terrace and sun deck with a 21 m2 swimming pool.

First Floor:

- 3 spacious bedrooms.
- 3 modern bathrooms (each bedroom has an en-suite bathroom, ideal for tourist rentals).

CONSTRUCTION STANDARDS:

- High energy efficiency and top-quality materials.
- Air conditioning in all rooms and premium floor ceramics.
- 2 secured parking spaces.

HEATING AND COOLING SYSTEM:

- Air conditioning
- Heat pump

Utilities:

- City water supply, City sewage, Electricity.

DOCUMENTATION:

- Title deed (clean title), Building permit.
- NO ENCUMBRANCES!

For more information:
Tel: +385 95 7170345
Email: info@kvadar-nekretnine.hr
Web: www.kvadar-nekretnine.hr







MALINSKA - Luxuriöser Neubau mit Pool und Meerblick, 139 m2 (Doppelhaushälfte)

Zum Verkauf steht eine moderne mediterrane Doppelhaushälfte in Malinska auf der Insel Krk. Diese Luxusimmobilie bietet höchste Bauqualität, einen privaten Pool und modernes Design in ruhiger Lage, nahe allen Annehmlichkeiten.
Die Immobilie befindet sich in einer ruhigen Mikrolage, umgeben von neuen Gebäuden. Die Nähe zum Meer, zum Stadtzentrum, zu Geschäften und Restaurants macht sie perfekt für das Eigenheim oder als Investition.

Das Haus ist als Kombination aus modernem Design und mediterranem Ambiente konzipiert, wobei der Fokus auf Funktionalität und Komfort liegt.

Jedes Haus besteht aus:
Erdgeschoss:

- Großzügiger Open-Space-Wohnbereich mit Küche und Esszimmer.
- Badezimmer und ein praktischer Abstellraum.
- Ausgang zur überdachten Terrasse und Liegefläche mit einem 21 m2 großen Pool.

Obergeschoss:

- 3 geräumige Schlafzimmer.
- 3 moderne Badezimmer (jedes Zimmer verfügt über ein eigenes Bad, ideal für die touristische Vermietung).

BAUSTANDARD:

- Hohe Energieeffizienz und hochwertigste Materialien.
- Klimatisierung aller Räume und erstklassige Bodenkeramik.
- 2 gesicherte Parkplätze.

HEIZUNGS- UND KLIMASYSTEM:

- Klimaanlage
- Wärmepumpe

Anschlüsse:

- Städtische Wasserversorgung, Kanalisation, Strom.

DOKUMENTATION:

- Eigentumsblatt (sauberes Eigentum), Baugenehmigung.
- LASTENFREI!

Für weitere Informationen:
Tel: +385 95 7170345
E-Mail: info@kvadar-nekretnine.hr
Web: www.kvadar-nekretnine.hr



Razna svojstva

  • Balkon
  • Terasa
  • Vrt
  • Bazen
  • PVC stolarija

Grijanje

  • Struja
  • Klima

Instalacije

  • Struja
  • Voda
  • Kanalizacija

Stanje zgrade

  • Novogradnja

Orijentacija

  • Sjever
  • Zapad

U blizini

  • Trgovina
  • Restoran
  • Zubarska ord.
  • Park
  • Frizerski salon
  • Škola
  • Javni prijevoz
  • Muzej
  • Javna plaža
  • Stanica za punjene el. automobila

Katnost kuće

  • 1

Dokumentacija

  • Građevinska dozvola
  • Vlasnički list

Prikaz nekretnine na karti

Kontaktiraj agenciju